We are now using our Instagram to show the latest updates from the office.
Have a look at our projects on site, on the drawing board, and what we get up to in between.
New office announcement!
We are currently moving into a new office with distant views of the River Orwell.
Our address is River Barn, Peninsula Business Centre, Wherstead, Ipswich, IP9 2BB
September 2021

Athelington, Suffolk
We are thrilled to gain planning permission for a new dwelling in the Suffolk countryside. A huge effort was made by the team for this latest success.
01/09/21
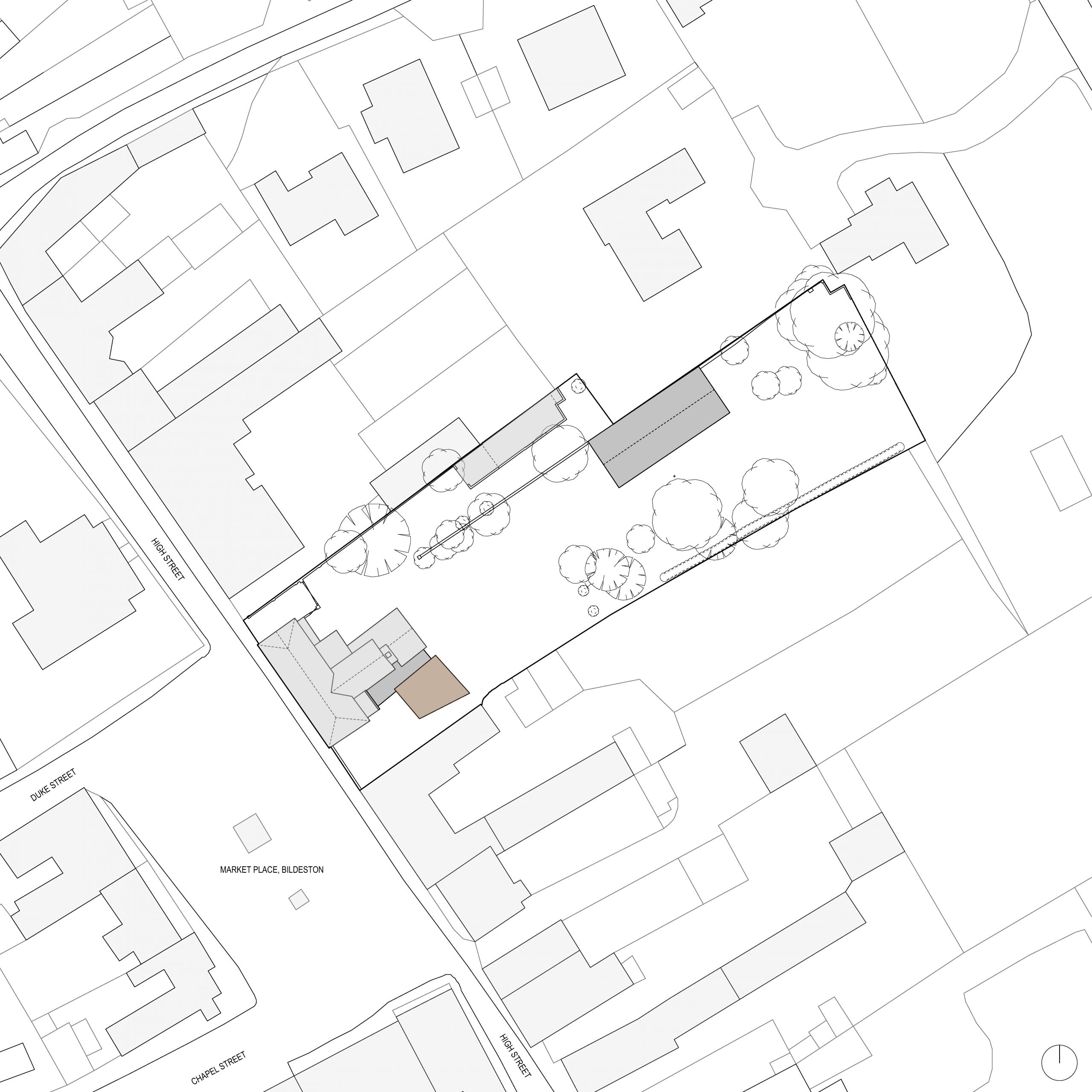
Red House, Bildeston
We are starting on site in June for a contemporary kitchen extension with a glass link that provides improved access to the garden. More updates to follow
01/06/21



Land at Hill Farm, Ufford
We are delighted to gain planning approval for seven single storey dwellings in a rural setting with Nest Development. The ground has been broken already and technical drawings have begun.
26/05/21

Whitehouse Farm Barns, Woolverstone
The conversion of seven barns at Whitehouse Farm with NEST Development continues on site with the sale of each unit upon completion.
16/04/21



Whitehouse Farm Barns, Woolverstone
Demolition works have begun on site for our conversion of 7 agricultural buildings into dwellings in Woolverstone.
05/08/20
Poplar Farm Barns
Poplar Farm Barn in Suffolk is up for sale for conversion into a new dwelling. We developed the building thus far with the current owners producing these 3D visualisations.
This project currently is currently on the market with The Modern House
18/02/20
Whitehouse Farm Barns, Woolverstone
Whitehouse Farm Barns are located in the village of Woolverstone, Suffolk. The proposal has been developed in accordance with our client; Nest Development. The class Q conversion of six barns into new dwellings is due to begin on site shortly.
21/01/20